|   | Bảng dữ liệu sản phẩm |   |   |   | ||
| 1162 Series — BÁNH XE SIÊU TẢI (Một bánh) |   |   | ||||
| Bánh xe VXPU (vòng cung đỏ rượu) Đường kính bánh xe × Chiều rộng bánh xe 150 x 42mm |   |   | ||||
| EAN |   | |||||
| KS-11620600691011 |   | |||||
|   |   | |||||
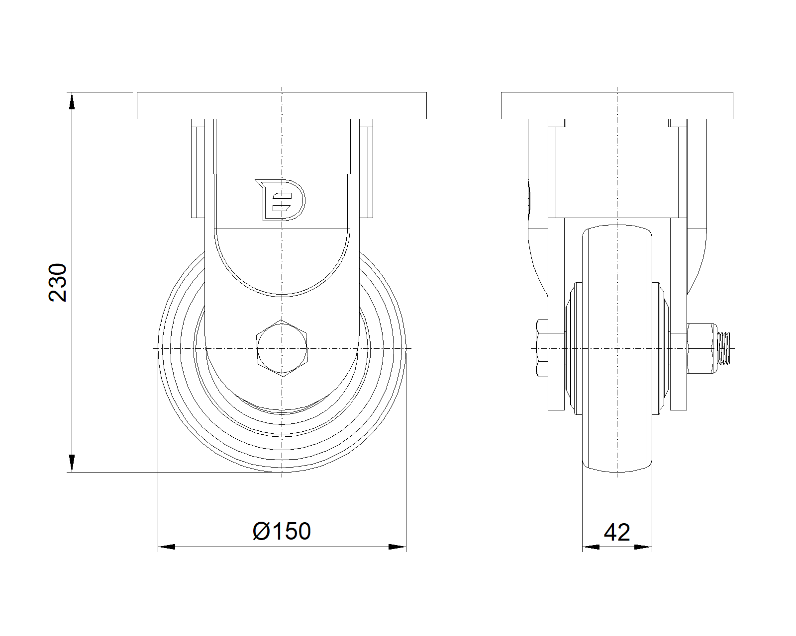
| Bánh xe cố định với khung thép hàn, sơn phủ màu xanh. Lắp đế, khoảng cách lỗ 140x105mm. Lõi gang với gai polyurethane chất lượng cao, phay màu đỏ tía. Ổ trục bánh xe: ổ bi góc. |   | |||||
|   |   | |||||
| Mặt bánh xe: Được làm bằng polyurethane chất lượng cao Lõi bánh xe: lõi sắt/lõi gang Mô tả sản phẩm chỉ mang tính chất tham khảo. Sản phẩm thực tế sẽ được ưu tiên. |   | |||||
|   |   | |||||
|   đơn vị mét đế quốc 
				  Đường kính bánh xe
			
								
												
                 				
			
															    150mm 
								
				 
				  Chiều rộng bánh xe
				
								
								
																			    42mm 
								 |   |   | ||||
| 
				  vòng bi bánh xe
								
								
																			    Bánh xe trang bị vòng bi bi
								 
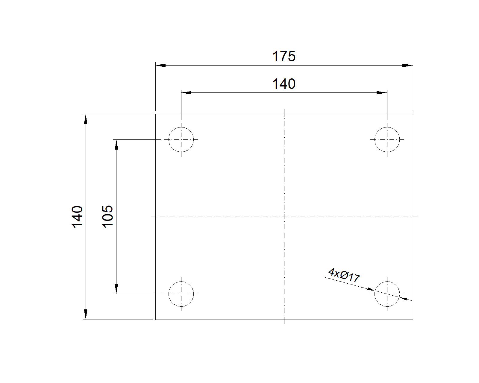
				  Quy cách tấm lắp
								                
												
               																																			    175 x 140mm  
								
				 
					  khoảng cách các lỗ trên tấm nền
										
															
													
				
																	
																
				
				
																
								140x105mm 
								 
					  Khoảng cách các lỗ lắp
																									
									   				   				   					17mm 
				   				    
					  Tổng chiều cao
																									
					                                                  				230mm 
								
				 
					  Độ cứng
																																													93±5° Shore A 
										 
					  Tải trọng (động)
																																													650kgs 
										 | Độ di chuyển mượt mà ● ● ● ○ ○ Chế độ im lặng ● ● ● ● ○ Bảo vệ mặt sàn ● ● ● ● ○ | |||||
| 
					  Tải trọng (tĩnh)
																									
										 					 					 					975kgs 
				     					 
					  
					  Nhiệt độ
																																													-20°C to +70°C 
				    				 
					  Càng bánh xe
																																										Cố định 
								 |   | |||||
| 
					  Thép không gỉ
																									
				    				    				    				    					N/A
				    					 
					  Dẫn điện
																									
																									N/A 
				    					 
				  Chống tĩnh điện	
																								N/A 
				    					 
					  Trọng lượng bánh xe đẩy
																																													8.88kgs 
										
					 
					  Tiêu chuẩn kiểm nghiệm
																																										ISO22883
								 |   |   | ||||
|   |   | |||||
|   |   | |||||
|   |   | |||||
|   |   | |||||
| © Bản quyền thuộc về 2025 DershengInternational www.dersheng.com | ||||||
 
			
			
			 150 mm
						150 mm					
					
						 650 Kgs
						650 Kgs					
					
						 230 mm
						230 mm					
				 150 mm
						150 mm					
					
						 650 Kgs
						650 Kgs					
					
						 230 mm
						230 mm