|   | Bảng dữ liệu sản phẩm |   |   |   | ||
| 1162 Series — BÁNH XE SIÊU TẢI (Một bánh) |   |   | ||||
| MC Bánh xe nylon (màu trắng gạo) Đường kính bánh xe × Chiều rộng bánh xe 350 x 95mm |   |   | ||||
| EAN |   | |||||
| KS-11621400071111 |   | |||||
|   |   | |||||
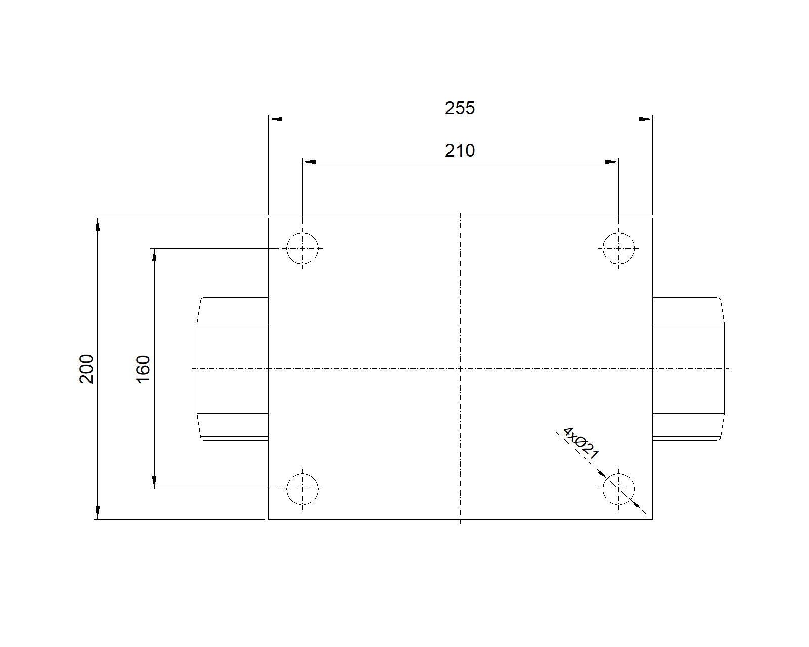
| Bánh xe cố định, khung thép hàn, sơn phủ màu xanh Lắp đế, khoảng cách lỗ 210x160 Lõi bánh xe và gai bánh xe bằng nhựa nhiệt dẻo, màu trắng ngà Vòng bi bánh xe - vòng bi góc Vòng bi bánh xe - vòng bi góc |   | |||||
|   |   | |||||
| Mặt bánh xe: Được làm bằng polyurethane chất lượng cao Lõi bánh xe: lõi sắt/lõi gang Mô tả sản phẩm chỉ mang tính chất tham khảo. Sản phẩm thực tế sẽ được ưu tiên. |   | |||||
|   |   | |||||
|   đơn vị mét đế quốc 
				  Đường kính bánh xe
			
								
												
                 				
			
															    350mm 
								
				 
				  Chiều rộng bánh xe
				
								
								
																			    95mm 
								 |   |   | ||||
| 
				  vòng bi bánh xe
								
								
																			    Bánh xe trang bị vòng bi bi
								 
				  Quy cách tấm lắp
								                
												
               																																			    255 x 200mm  
								
				 
					  khoảng cách các lỗ trên tấm nền
										
															
													
				
																	
																
				
				
																
								210 x 160mm 
								 
					  Khoảng cách các lỗ lắp
																									
									   				   				   					21mm 
				   				    
					  Tổng chiều cao
																									
					                                                  				430mm 
								
				 
					  Độ cứng
																																													82±5° Shore D 
										 
					  Tải trọng (động)
																																													7175kgs 
										 | Độ di chuyển mượt mà ● ● ● ● ● Chế độ im lặng ● ● ○ ○ ○ Bảo vệ mặt sàn ● ● ○ ○ ○ | |||||
| 
					  Tải trọng (tĩnh)
																									
										 					 					 					10762.5kgs 
				     					 
					  
					  Nhiệt độ
																																													-25°C to +80°C 
				    				 
					  Càng bánh xe
																																										Cố định 
								 |   | |||||
| 
					  Thép không gỉ
																									
				    				    				    				    					N/A
				    					 
					  Dẫn điện
																									
																									N/A 
				    					 
				  Chống tĩnh điện	
																								N/A 
				    					 
					  Trọng lượng bánh xe đẩy
																																													31.10kgs 
										
					 
					  Tiêu chuẩn kiểm nghiệm
																																										ISO22883
								 |   |   | ||||
|   |   | |||||
|   |   | |||||
|   |   | |||||
|   |   | |||||
| © Bản quyền thuộc về 2025 DershengInternational www.dersheng.com | ||||||
 
			
			
			 350 mm
						350 mm					
					
						 7175 Kgs
						7175 Kgs					
					
						 430 mm
						430 mm					
				 
			
			
			 350 mm
						350 mm					
					
						 7175 Kgs
						7175 Kgs					
					
						 430 mm
						430 mm